Botans Lantbruk

Gårdens plats
Vikarbyn, Dalarna
Besättningsstorlek
295
– Vi sparar nästan en timme per dag tack vare DeLaval Plus Beteendeanalyssystemet!
Det berättar Kristina och Bengt på Botans Lantbruk. I april 2023 gick den gamla karusellen i pension och de mjölkade in sina kor i fem nya DeLaval VMS™ V300 med fri kotrafik. Eftersom deras målsättning är att hålla samma höga produktion som i karusellen fick de lägga ganska mycket tid på att hämta sena kor. I augusti satsade de på det nylanserade systemet DeLaval Plus Beteendeanalys BA300 och det har underlättat på många sätt, inte minst vid hämtning av kor till mjölkning. Dottern Josefin arbetar på gården en dag i veckan och på en annan gård resten av tiden.
(På bilden ser ni Josefin och Bengt Samuelsson)

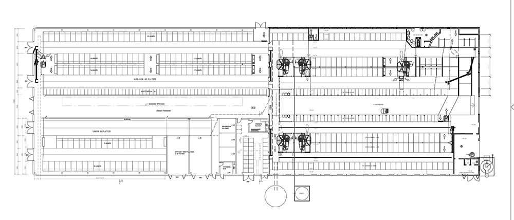
Ny mjölkning i befintligt stall
– Vi tog beslut att installera robotar i vårt befintliga stall men det var inte vår första tanke. Vi planerade från början att bygga ett helt nytt stall vid vår andra gård men byggkostnaderna gick upp så pass mycket under planeringstiden att vi fick tänka om, berättar Bengt och Kristina.
Säljaren från DeLaval, Carl Bäckman, tog fram de ritningar som behövdes med placering av VMSer och vilka ombyggnationer och gjutningsarbeten som krävdes.

Bygga och mjölka i samma stall
– Vi mjölkade hela tiden under byggprocessen i ladugården. Det var naturligtvis lite jobbigt men höga ljudnivåer och att vi fick leda korna olika vägar till karusellen beroende på vad som hände byggmässigt just då. Korna tog det dock bra och vi såg inget tapp i produktionen, berättar Kristina.
Bygget genomfördes i egen regi där byggkunniga i närområdet hyrdes in för olika moment och mycket gjordes av Bengt och anställda på gården. Byggstarten var i januari 2023 och den 17e april mjölkades korna i robotarna. Samarbetet med DeLaval och säljaren Carl Bäckman fungerade bra och installationen av robotarna.
– Det gick riktigt bra att mjölka in tack vare all god hjälp vi hade av familj och vänner. De är guld värda, konstaterar Bengt och Kristina. Det blev kanske ett litet tapp i produktionen just de första dagarna men det kom snabbt upp igen.
Bygget var dock inte slut vid inmjölkningen eftersom hela karusellen skulle monteras ner och forslas bort. Där karusellen stod finns nu en liten bakomgrupp.

Beteendeanalyssystemet blev ett lyft
Systemet innehåller flera olika funktioner. I dagsläget kan systemet hitta brunstiga kor, hitta kor som är sjuka eller riskerar att snart bli sjuka genom att mäta avvikelser vad gäller aktivitet, idissling och ättid samt att systemet visar dig exakt var i stallet en specifik ko eller flera olika kor befinner sig.
– Vi började använda BA-systemet i augusti. Då var det brunsterna vi kunde se. Vi hittar brunsterna bättre nu än tidigare och kan ta väl underbyggda beslut. Det enda som kan vara lite lurigt är att när vi flyttar en ko till en ny grupp så springer hon runt och undersöker och då kan hon komma upp på listan trots att hon inte är brunstig. Det är något som vi måste vara uppmärksamma på. I november fick vi i gång funktionen att se korna i stallet och det är verkligen användbart.
DeLavals rådgivare Emelie hjälpte oss att lägga in listor i systemet som är mycket användbara för oss.
Så vår rutin är att på morgonen samlar vi in de kor som inte blivit mjölkade och tack vare BA så kan vi se en karta i telefonen som visar exakt var de korna är. Det gör att det blir lätt att samla alla samtidigt och få dem till robotarna. Det tar ca 30 minuter och då skrapar vi gångarna också.
Efter det tittar vi efter sjukdomslarmen och hanterar dem.
Därefter tittar vi efter brunstlarm och då gör jag så att jag tittar i appen var hon är, hittar henne och låser fast henne och seminerar på en gång, sedan tar jag nästa. Det är smidigt att arbeta så, berättar Kristina.
Om man har stora grupper så är BA systemet verkligen mycket bra. Det går så fort att samla ihop korna som är sena till mjölkning. Det är viktigt för oss att de mjölkas tre gånger per dygn för att hålla produktionen uppe. Vi uppskattar att vi sparar minst 45 minuter per dag på att ha BA-systemet, summerar Bengt och Kristina.
(På bilden syns en av flera avläsare som installerats i stallet. Dessa läser av de transpondrar som korna har i öronen och på så sätt samlas data in för att analysera kornas beteenden och var i stallet de befinner sig.)

Kunduttalandena visar våra kunders dagliga erfarenheter vid användning av produkter från DeLaval. Resultaten som framkommer har inte utvärderats av oberoende part och DeLaval påstår inte att dessa resultat är typiska.
Faktiska resultat och förbättringar beror på flera faktorer så som tidigare mjölkningsrutiner, typ av kor, gårdens styrning och rutiner. Kunduttalanden utgör ingen resultatgaranti.