Concevoir votre bâtiment d'élevage pour le Nouveau VMS™ V300
Ce qui ne change pas
Essentiellement, le nouveau VMS V300 nécessitera chacun des éléments suivants pour rester le même :
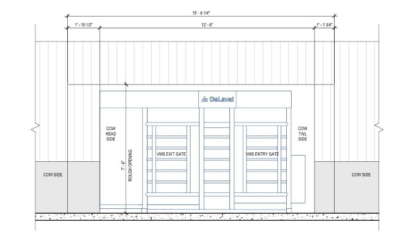
- La taille de son emplacement (Illustration 1),
- La taille de l'ouverture dans la salle, également appelée la salle VMS (Illustrations 1 et 2),
- Les dégagements du côté de la vache pour permettre une circulation fluide (Illustration 1), et
- Les dégagements du côté opérateur pour permettre une facilité d'utilisation sécuritaire (Illustration 1).


Salle de VMS
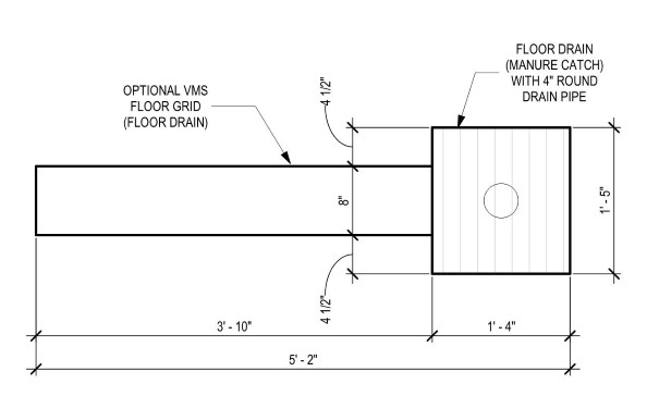
La configuration du système de drainage incluant le canal de drainage sur la longueur de la Salle de VMS, et le drain de décharge du fumier derrière le VMS V300 demeurera inchangée. Cela inclut le canal de drainage sous le plancher lorsque la grille de plancher VMS facultative est choisie. (Voir les illustrations 3 et 4 pour obtenir un aperçu détaillé de ce type de conception du système de drainage.)


Ce qui change
Examinons maintenant de plus près certaines de ces différences. Plus particulièrement, le module d'alimentation situé dans l'armoire à l'avant du VMS V300 (côté tête de la vache) est plus étroit, permettant ainsi aux vaches de quitter le VMS V300 plus rapidement et plus harmonieusement grâce à une sortie beaucoup plus large. (Voir l'illustration 5 pour une comparaison des armoires).

Avec une armoire plus étroite, environ 27 centimètres ont été ajoutés à la longueur totale du VMS V300. Les composants situés dans l'armoire nécessitent peu d'entretien, ce qui réduit la demande d'accessibilité, mais vous pouvez toujours y accéder à partir du côté vache et par le dessus si nécessaire. La nouvelle conception de l'armoire, ainsi que la porte d'accès principale relocalisée sur le côté opérateur du robot, signifie que le robot requiert moins d'espace à l'avant - réduisant du coup la taille totale de la Salle de VMS.
Le VMS V300 apporte de nombreuses améliorations passionnantes, et j'en ai décrit uniquement quelques-unes qui impactent la planification et la conception du complexe. Dans la prochaine édition Le Navigateur, nous approfondirons davantage la portée et explorerons comment le nouveau VMS V300 s'intègre à une installation existante. Bien entendu, il y a beaucoup à apprendre, alors restez à l'affût !